
GLORIA JEANS BAHRIA ENCLAVE
Typology
Restaurant
Year
2019
Area
1300 sft
Location
Bahria Enclave, Islamabad, Pakistan
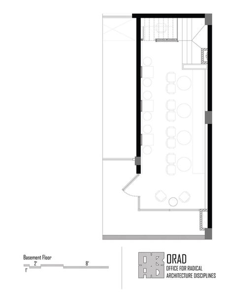
1300 sft of space sits in an upcoming retail hub of a new housing society. “Gloria jeans” is a well-established coffee house. The task at hand was to remodel the interior. “Gloria jeans” is a social hub, people from different walks of life visit to grab a coffee at different hours of the day. Space was designed to serve people round the clock. Planning was very pragmatic in order to serve the functional operations of the establishment. The design consists of two spaces. Level 0 holds the bar, seating area, and toilet and level -1 is a seating area for smokers. The space is wrapped with a louvered wooden dado wall and exposed brick. Floor surfaces are in wooden and marble textures with brass inlays. The ceiling is exposed concrete with hanging brass round lights.














