
HOUSE YA
Typology
Resedential
Year
2017
Area
11,750 Sf
Design Team:
Affan Ahmed, Dawar Zia
Muhammad Ali Sanaullah
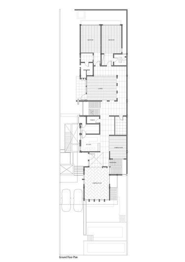
House 7 is devised around a very meticulous but elaborate design brief. Client had a certain idea about space. After analyzing the brief the spatial arrangement and skin was developed simultaneously. Private spaces (Bedrooms and Lounge) are placed at the rear side of the site. Public spaces (Drawing and formal dining) are at the forefront and service and auxiliary spaces between public and private spaces. Staircase is a connective between multiple levels. Residence is a composition of grey and brick masses. An array of fenestration of vertical proportions are placed around the house to add height to the masses. Terrace on level 3 besides lounge sits in an enclosure and works as an introverted courtyard. Stair landing is extended to have a sitting deck/diving board. Lap pool lessens the temperature in summers and regulates the airflow. Two Brick reliefs are placed in the design composition. Boundary wall with parametric pigeon-hole lightens the visual and makes the front facade more visually approachable. Wall relief is the beating heart in the design Composition. Bricks cantilevering out of the wall in an overlapping sinusoidal wave Pattern, which is extracted from construction video recorded during the construction phase of the project. Later human voice was removed from the track and multiples tracks of construction sounds are overlapped. Transferring incorporeal audio track into relief was a conscious decision, in order to connect to the context and to translate the process into a tangible outcome.




















